г. Москва, Шмитовский проезд, 12; +7 (495) 221-22-43
Email: info@apbp.ru
Telegram
WhatsApp

Проект перепланировки магазина

Проект перепланировки для магазина непродовольственных товаров - это очень просто, а такой же проект для магазина продовольственных товаров может оказаться очень сложным и почти всегда так и выходит.

  Непродовольственные магазины. Простейший случай проекта перепланировки магазина - непродовольственный магазин, расположенный в торгово-развлекательном комплексе или в торговом молле. В этом случае перепланировка состоит всего лишь в выгораживании периметра магазина внутри торгового центра и в размещении нескольких внутренних перегородок под конкретного арендатора. Однако детальный проект с разделами АР, ЭОМ, ОВ, ВК требуется разработать и согласовать с управляющей компанией. В остальных случаях проекты не вызывают особых сложностей, за исключением организации погрузочных зон магазинов, расположенных в жилых зданиях.

Архитектурно-проектное бюро АПБП выполнило проекты более чем 50 непродовольственных магазинов, среди которых Incanto, Adidas Олимп, Murphy & Nye, Grishko, Aristoteli Bitsiani, REFLEX, RegStaer, Pilot's shop Vnukovo.

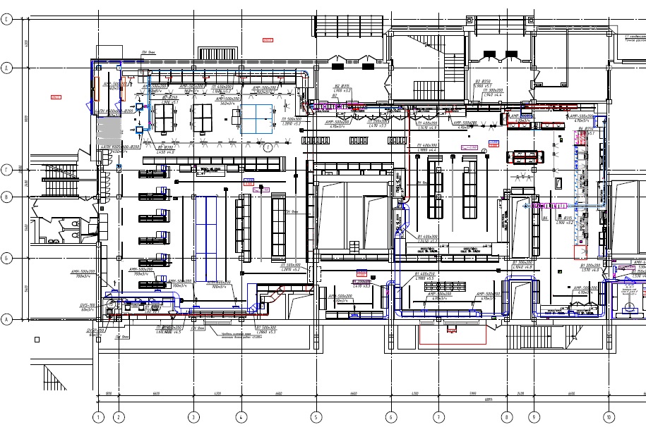
  Продовольственные магазины и супермаркеты с секцией продовольственных товаров. Этот проект относится к категории сложных, особенно если магазин находится в жилом здании. Сложности возникают с организацией погрузочно-разгрузочного узла и полноценной системы вентиляции в жилом здании. Еще одна возможная проблема - недостаток выделенной электрической мощности. Необходимость согласовывать проект (обычно заказчика интересует разрешение на проведение строительных работ) также сопряжено с рядом дополнительных трудностей.  Наличие продовольственных товаров влечет за собой необходимость разработки технологического проекта с описанием особенностей хранения этой группы товаров и расстановкой холодильного торгового оборудования. Если в магазине предусматривается выпечка хлеба, гриль, кулинария, это также отражается в проекте технологии и под это оборудование затем будут выделены вентиляционные и электрические ресурсы. В соответствии с проектом технологии разрабатывается раздел ОВ (Отопление, вентиляция, кондиционирование) обеспечивающий воздухообмен и температурный режим в торговом зале, а также разделы ЭОМ (Система электроосвещения и силовое оборудование) и ВК (Водоснабжение и водоотведение). Следующая особенность: проектировщику наверняка придется работать над проектом в авральном режиме (дорогостоящая аренда и необходимость срочного открытия магазина к запланированной дате), а исходных данных либо не будет (арендодатель не предоставил), либо они будут недостаточными. В этом случае мы проводим экспресс-обследование помещений, конструкций, инженерных систем и полагаемся на свой опыт.

Архитектурно-проектное бюро АПБП  разработало более 70 подобных проектов, в том числе для московских сетевых ритейлеров -  Пятерочка, Перекресток, Билла, сотрудничество с которыми продолжается.

Наши клиенты